Модульное здание МЗ-19 из 8 блок-контейнеров БК-00
В стоимость входит монтаж.
Доставка рассчитывается отдельно.
Доступно в лизинг
Варианты цветов
Проводим полную обработку гидроизоляционными материалами всех угловых стыков, что позволяет сохранить тепло в зимнее время и прохладу в летнее.
Характеристики
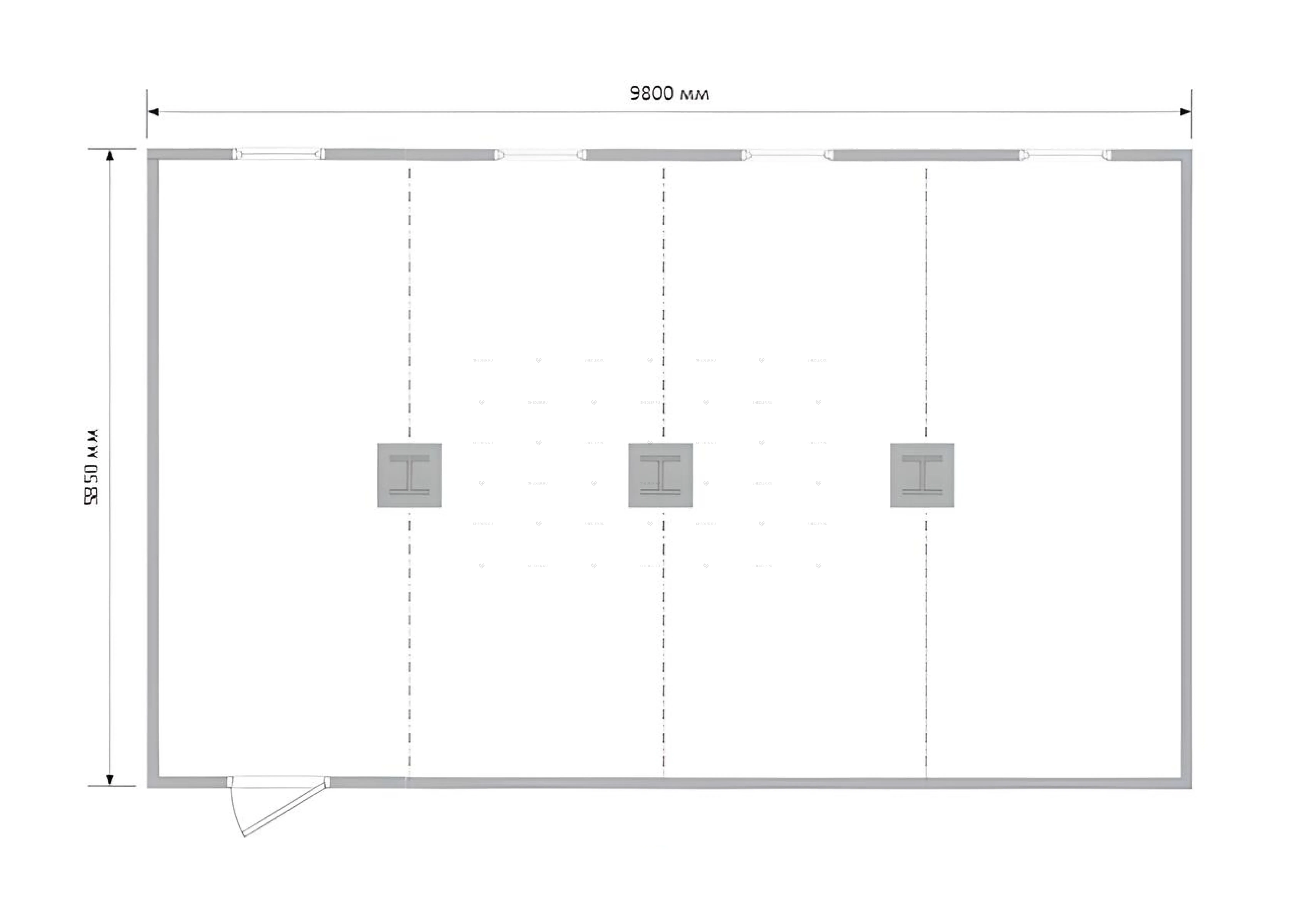
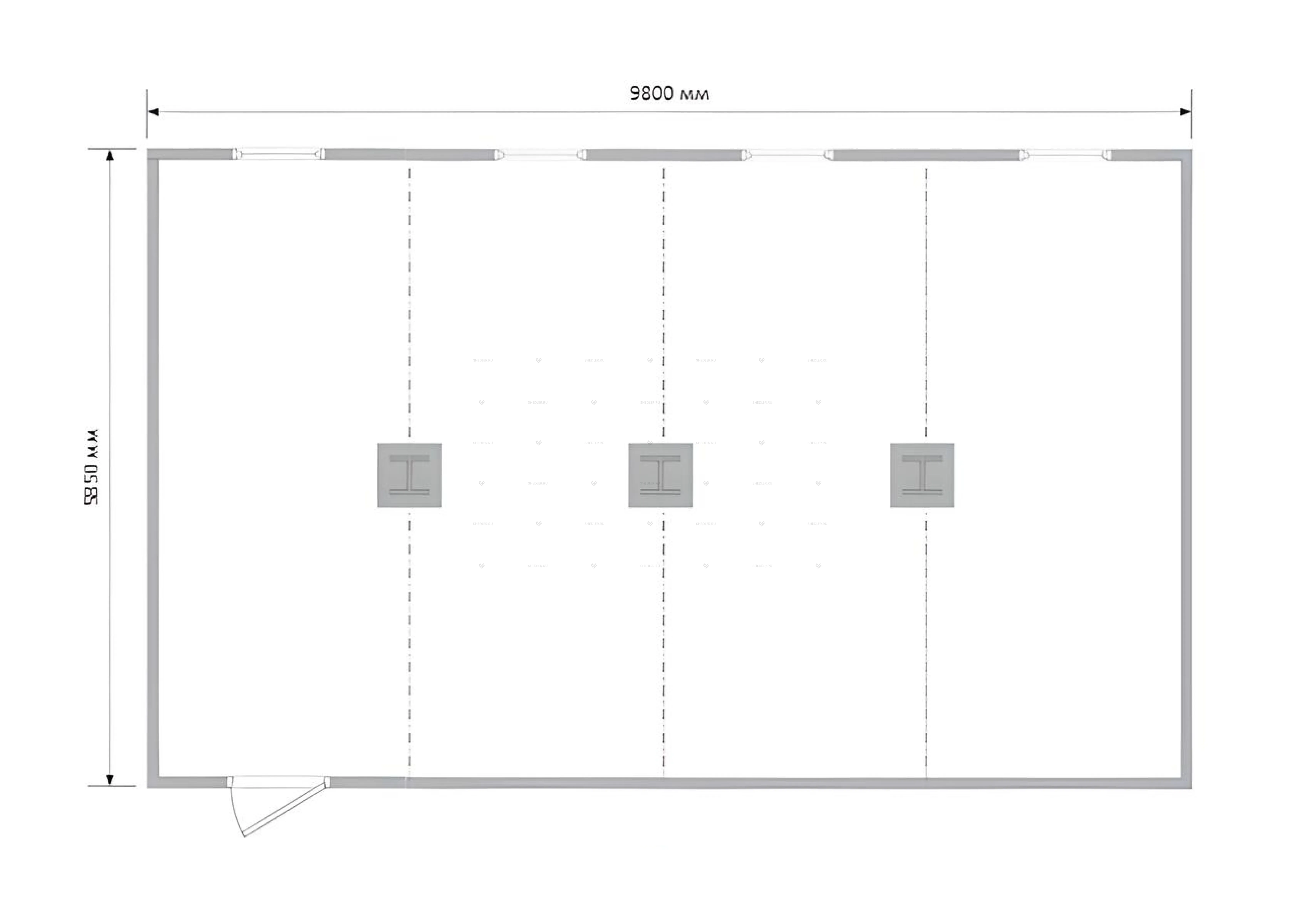
| Габаритные размеры | 5,85 х 9,8 х 4,9 м |
| Каркас | Швеллер 120 мм, уголок 90 х 90 мм |
| Крыша | Плоская, сварная из стального листа 0,7 мм, окрашенная в цвет каркаса |
| Внешняя отделка | Оцинкованный профлист С8 |
| Дно | Оцинкованный профлист С8 |
| Внутренняя отделка | ДВП |
| Пол | OSB 12 мм |
| Утеплитель | URSA 50 мм (пол, потолок, стены) |
| Дверь | 2 шт., ДВП с врезным замком, обшитая снаружи гладким оцинкованным листом, ручка грибок |
| Окно | 8 шт., 75 х 90 см (деревянное с двойным остеклением) |
| Электрика | Без электрики |
| Лестница | 1 шт. прямая на 2-й этаж + площадка 1,25 х 1,25 м + перила проф.труба 20 х 40 |
| Пароизоляция | Пленка 40 мкм |
| Монтажная колонна | 6 шт. |
| Внутренняя обрешетка (стены, пол, потолок) | Брус 100 х 40 мм |
Дополнительная комплектация и отделка
Наружная отделка
Сайдинг
Сайдинг – один из самых популярных и доступных отделочных материалов, который монтируется внахлёст. Основным сырьём выступает ПВХ, винил, акрил, металл или дерево. Форма и цвет сайдинга разнообразны: он может быть горизонтальным или вертикальным; одноцветным или с принтом; имитирующим дерево, кирпич или мрамор. Сайдинг быстро монтируется даже при больших площадях покрытия, не утяжеляет здание, так как очень лёгкий и не требует особого ухода. Характеризуется долговечностью, устойчивостью к перепаду температур и повышенной влажности.
Алюкобонд
Алюминиевые композитные панели выполнены из полимера и алюминия. Толщина облицовочного материал 0,5 мм, при этом ширина и длина материла может быть разной – квадратной или прямоугольной. Изделие состоит из нескольких слоёв, основными компонентами выступают пластиковый наполнитель и два слоя алюминия. Материал идеально подходит для отделки фасада любого помещения, начиная от бытовки и заканчивая высотными зданиями. Алюкобонд устойчив к атмосферным воздействиям, долговечен, имеет приятную гладкую поверхность, не горюч и пластичен. Работать с материалом удобно и легко, он собирается как пазл, причём можно делать любые узоры и рисунки, используя разноцветные панели.
Планкен
Планкен (деревянная планка) бывает двух видов – цельный или сращенный. Производится из древесины высокого качества: сосны, липы, осины, лиственницы. Используется материал для внутренней и внешней отделки дома, дачи, бытовки, бани, гаража и т.д. Толщина планкена колеблется от 15 до 22 мм, доска со временем не деформируется и хорошо переносит атмосферные осадки. Преимущество материала в том, что его можно монтировать как вертикально, так и горизонтально – удобные пазы делают крепление надёжным и эстетичным, без использования крепежа. Доски обрабатывают спецсредствами, чтобы насекомые и гнилостные бактерии не разрушали структуру древесины.
Блок Хаус
Блок Хаус – это имитация деревянной отделки фасада. При этом сам материал используется натуральный из массива натурального дерева, просто применяется не кругляк, а только завальцованная доска. В качестве древесины может быть сосна, кедр или лиственница. Материал обрабатывают специальными средствами, чтобы он не был подвержен гниению, воспламенению и вредителями. Блок Хаус прочный и эстетичный материал, способный придать гаражу или бытовке привлекательный внешний вид. Кроме того, древесина выступает в роли естественного утеплителя, сохраняя тепло внутри помещения. Отделка возможна как снаружи, так и изнутри.
Цветной профлист С8
Профилированный лист С8 производят из холоднокатаной оцинкованной стали, которую покрывают защитно-декоративным слоем. Материал устойчив к механическим повреждениям, воздействию коррозии, химических реагентов и УФ-лучей. Толщина стали 0,4-0,5 мм, ширина самого листа 1200 мм, а высота волны 8 мм. Цветовая палитра может быть разной по каталогу RAL: от чёрной до ярко-красной. Область применения цветного профлиста С8 не ограничена – отделка бытовки, блок-контейнеров, модульных зданий. Его используют как для создания стен, так и кровли. Прочность материала способна выдержать нагрузку до 250 кг/м.кв.
Оцинкованный профлист С8
Профлист выполнен из оцинкованной холоднокатаной стали марки 01. Чаще всего толщина металла – 0,5 мм, при этом защитный слой составляет 100 г/м². С8 обозначает, что высота профиля равна 8 мм. Стеновой профиль имеет трапециевидный вид волны, монтируется в нахлёст. Материал имеет полимерный слой толщиной 25 мкм, который защищает от коррозии, агрессивных веществ и прямых солнечных лучей. Оцинкованный профлист С8 используется для отделки стен блок-контейнеров бытовок, модульных зданий и т.д.
Внутренняя отделка (стены)
ДВП
ДВП или древесно-волокнистая плита представляет собой листовой материал, который изготавливается из спрессованных древесных волокон, обработанных специальными связующими веществами из смолы, парафина, синтетических смол. Иногда в состав ДВП добавляются антисептики, а также огнезащитные средства. Прочная, впитывает влагу, а также обладает прекрасными звукоизоляционными качествами. ДВП является одним из самых недорогих материалов, применяемых для отделки контейнеров, бытовок и модульных зданий.
Профлист
Профлист - универсальный листовой материал, широко применяющийся в строительстве для отделки, в том числе блок-контейнеров, бытовок и модульных зданий. Стальной лист, профилированный с применением специальной технологии, что придает повышенную прочность, жесткость, а также устойчивость к деформации. Профлист является долговечным материалом, не подверженным гниению и коррозии. Материал легок в монтаже, а также устойчив к влаге, что делает его популярным для отделки блок-контейнеров. Профлист может быть окрашен в любые доступные цвета палитры RAL, что позволяет придать постройке из профлиста презентабельный и эстетичный вид. Профлист является относительно недорогим материалом, что делает его доступным и привлекательным для различных строительных проектов.
OSB
OSB или древесно стружечная плита представляет собой материал, изготовленный из древесной стружки, которая прессуется под высоким давлением с применением синтетических смол. Благодаря таким свойствам, как прочность и влагостойкость, материал OSB нашел широкое применение в строительстве в качестве отделочного материала для пола и стен. ОСП довольно легок в обработке – легко режется и крепится, что сильно облегчает процесс отделки помещений. ОСП является универсальным материалом, применяемым как для внешней, так и для внутренней отделки. Материал обладает хорошей звукоизоляцией, а в сочетании с утеплителем может обеспечить отличную теплоизоляцию внутри бытовки.
Фанера
Листовой материал, который производится из тонких листов древесного шпона, склеенных между собой под прямым углом. Этот материал нашел свое широкое применение в строительстве. При изготовлении фанеры чаще всего используются хвойные породы дерева или береза. Для отделки стен блок-контейнеров и бытовок обычно используют влагостойкую фанеру, обработанную специальными защитными средствами.
Фанера является достаточно прочным и легкообрабатываемым материалом, что делает ее популярной для отделки. Может быть покрыта различными декоративными элементами, что позволяет придать стенам бытовок эстетичный и уютный вид. Является более доступным по цене материалом по сравнению с МДФ и ДСП.
СМЛ панели
СМЛ панели – отделочный материал в виде жестких, водостойких плит из минерального сырья. СМЛ панели производятся из минеральных волокон, связующих веществ и модифицирующих добавок. Отличаются своей влагостойкостью, а также прочностью, способной выдерживать сильные механические нагрузки. Материал обладает высокой степенью пожаростойкости. СМЛ панели – это экологичный материал, изготавливающийся из натурального сырья и не содержащий вредных веществ. СМЛ применяется для внутренней отделки жилых и нежилых помещений, а также для облицовки фасада зданий.
Вагонка
Вагонка представляет собой узкие деревянные доски с пазами, которые создают сплошное покрытие. Как правило, вагонка изготавливается из хвойных пород дерева и классифицируется по сорту, отражающему качество древесины. Придает помещению уют деревянного экстерьера. Благодаря своим теплоизоляционным качествам, вагонка является популярным материалом для отделки стен и потолков. Также вагонка имеет хорошие звукоизоляционные характеристики. Это экологически чистый и безопасный материал, который при надлежащей обработке служит долгие годы.
ЛДСП панели
ЛДСП изготавливается из спрессованной древесной стружки с покрытием ламинатом – декоративным слоем, защищающим от влаги, царапин, а также механических повреждений. ЛДСП является одним из самых недорогих материалов, обладающих достаточной прочностью. Материал легок в обработке: его легко пилить, сверлить, фрезеровать. ЛДСП нашел свое применение в широком спектре строительных работ, таких как изготовление мебели, рекламных щитов, отделка стен, а также в качестве основы для таких строительных конструкций, как перегородки.
МДФ панели
МДФ – древесно-волокнистый материал, производимый из древесной стружки, спрессованной под высоким давлением. Панели бывают разных видов и различаются по плотности и структуре. МДФ высокой плотности используется при производстве мебели, дверей и имеет высокую прочность и износостойкость. МДФ средней плотности применяется при производстве дверей, а также в отделке стен. МДВ является достаточно прочным материалом по сравнению с ДВП. Материал обладает хорошими звукоизоляционными и теплоизоляционными характеристиками.
ПВХ панели
ПВХ панели – отделочный материал, широко применяемый в различных сферах строительства и дизайна.
ПВХ панели изготавливаются из синтетического полимера поливинилхлорида и применяются для отделки потолков, стен, фасада, пола. Несомненным преимуществом ПВХ панелей является влагостойкость. Они не впитывают влагу, что делает их отличным выбором для помещений с повышенной влажностью. ПВХ панели достаточно прочные и устойчивые к механическим повреждениям, имеют хорошие теплоизоляционные характеристики, а также просты в уходе, так как не впитывают грязь и жир.
Напольные покрытия
Линолеум бытовой
Бытовой линолеум состоит из нескольких слоёв, общая толщина может доходить до 5 мм. В качестве основы выступает ПВХ, полиэстер, войлок или джут. ПВХ не продавливается, на нём не остаются вмятины и царапины, поэтому его активно используют для бытовок. Средний слой линолеума состоит из стекловолокна, который выполняет функцию стабилизации материала. Наружный слой – декоративный, на него носится любой рисунок. Скрепляется изображение защитным покрытием в 0,3 мм. Линолеум легко режется ножницами и быстро укладывается в любом помещении, не требуя дополнительного крепежа.
Линолеум полукоммерческий
Полукоммерческий линолеум характеризуется высокой прочностью, устойчив к чрезмерному изнашиванию и обладает антистатичными свойствами. Такое покрытие идеально подходит для блок контейнера и бытовки, так как не впитывает влагу и лёгок в уходе. Толщина линолеума от 2 до 4,5 см, при этом само защитное покрытие составляет 0,6 мм, что гарантирует истираемость 10 – 15 г/кв. м. Рисунок поверхности может быть любым, от простого узора до трёхмерного изображения. Линолеум полукоммерческий часто используется в местах с повышенной проходимостью.
Линолеум коммерческий
Коммерческий линолеум самый жёсткий, прочный и единственный материал из данной линейки, который обладает сертификатом КМ-2 (пожаробезопасен). Изделие имеет антискользящую поверхность, высокую влагостойкость и способность поглощать звуки. Выпускают два варианта коммерческого линолеума – гомогенный (однородное покрытие) и гетерогенный (несколько слоёв). Толщина материала колеблется от 3 до 7 мм, весит 3-5 кг/кв. м. Подходит для покрытия пола на складе, офисе, бытовке за счёт высокой сопротивляемости к влиянию химикатов и длительной эксплуатации (до 20 лет) без потери первоначального вида.
OSB
OSB производят из щепы хвойных пород деревьев путём прессования. В материал добавляется клеящая смола, поэтому он абсолютно экологичен, не выделяет вредных веществ и обладает высокой прочностью на разрыв. Применяется плита ОСП для стен, кровли и пола. Изделие способно выдержать большую нагрузку, не поддаётся гниению и устойчиво к влаге. Существует несколько классификаций листов, самый прочный OSB-4 – материал не ведёт, он выдерживает высокую механическую нагрузку. Плита легко режется, позволяя покрыть любую поверхность заданных размеров.
Резиновое покрытие
Область применения резиновых покрытий широка – складские помещения, бытовки, модульные здания, ангары и т.д. Поверхность эластичная, устойчивая к истиранию и воздействию агрессивных веществ. Резиновое покрытие может быть в виде бесшовного полотна или плитки. Производится из SBR-крошки, которой можно придать любую толщину и форму. Преимущество материала в том, что покрытие долговечно, не подвергается деформации из-за перепада температур, не разрушается под воздействием влаги и обладает антискользящей поверхностью.
ЦСП
ЦСП плита – это композитный материал, который имеет структуру бетона. В состав входит цемент, древесная стружка и специальные добавки. Это самый прочный и долговечный материал, который активно используется в качестве напольного покрытия в бытовке, на складе. Лист ЦСП состоит из трёх слоёв, толщина может быть от 8 до 40 мм. Материал устойчив к гниению и воздействию влаги, за счёт наличия в составе портландцемента. Его можно использовать в местах с повышенной нагрузкой (плотность 750-1100 кг/м.куб.), неотапливаемых помещениях (выдерживает сильные морозы) и местах с высокой влажностью (поглощает не более 16%).
Металлический чечевичный лист
Металлический лист с чечевичной текстурой представляет собой листовую оцинкованную сталь с рифленой поверхностью, напоминающей чечевицу. Чечевицы – выпуклые элементы на поверхности листа. Подобная текстура обеспечивает лучшее сцепление с подошвой, что делает пол менее скользким. Наиболее глубокие и крупные чечевицы способствуют большей прочности и износостойкости листа. Особой популярностью пользуется чечевичный пол в местах, где необходим прочный и нескользящий пол: склады, мастерские, бытовки, контейнеры и хозблоки.
Электрификация
Электропроводка в кабель канале
Кровля
Односкатная
Односкатная крыша представляет собой кровлю с одной плоскостью, которая оснащена стропильной системой наслонного типа. Угол наклона регулируется в зависимости от конструкции сооружения, на одну стену монтируется стропильная система, на которую крепится обрешётка и кровельный материал. Односкатная кровля экономичная, простая в монтаже и лёгкая. Часто применяется при сооружении модульных зданий, гаражей, складов и малогабаритных конструкций. В модульных зданиях используется профтруба, профлист С8, обрешетка, гидроизоляция.
Технониколь
Покрытие выполнено из стекловолокна и фибергласса. Бикрост относится к окисленным битумам, выпускается в рулонах и применяется для покрытия плоской кровли. В основу входит стеклохолст, на который наносится вяжущий битумный слой. Материал термообработан, также выполняет роль гидроизоляции. Используется покрытие «Технониколь» для модульных зданий, ангаров, складов, бытовок, характеризуется долговечностью и выносливостью. Материал заглушает шум дождя, исключая «барабанную дробь» как это бывает с металлом. При монтаже используется газовая горелка.
Двускатная крыша
Двускатная кровля состоит из мауэрлата, стропил, конька, стоек, опор и других элементов. Стропильная система может быть двух видов – висячей и наслонной. В качестве кровельного материала может выступать профлист С8, который крепится специальным крепежом к обрешётке. Угол наклона может быть 10 или 12 градусов, в зависимости от ширины конструкции. Используется для модульных зданий различного назначения: офис, штаб строительства, общежитие и т.д.
Сантехника
Унитаз
Унитаз, оснащенный автоматическим либо полуавтоматическим сливом. Благодаря подводке воды обеспечивается быстрый смыв. Подходят для установки в бытовках, модульных офисах, штабах строительства и прочих быстровозводимых зданиях.
Душевой поддон
Душевой поддон – незаменимый элемент душевого бокса, уголка. Устанавливаются в сантехнических блоках в модульных зданиях. Оптимальный размер (800х800 мм), наличие смесителя, подводки горячей и холодной воды, слив, шторка. Также вместе с поддоном устанавливаются коммуникации. Все это делает приспособление комфортным в эксплуатации.
Писсуар
Писсуар – разновидность унитаза, который устанавливается в мужских туалетах. Могут пригодиться и в бытовках, а также модульных зданиях, которые используются на строительном объекте, торговой или производственной площадке. Вместе с установкой писсуаров, полностью проводятся коммуникации.
Чаша Генуя
Чаша Генуя для установки в сантехнических блоках в модульных отелях, общежитиях и прочих быстровозводимых зданиях. Вместе с ними при установке модульного здания или блок-контейнера подводятся все необходимые коммуникации.
Раковина Тюльпан
Раковина – изделие в виде чаши, необходимое для гигиенических процедур. Приспособление оснащено смесителями с горячей/холодной водой, а также стоком для слива. Раковины из керамики белого цвета. Подходят для установки в бытовках, модульных офисах, сантехнических помещениях. Раковины устанавливаются в любом количестве, вместе с ними в здании проводятся необходимые коммуникации.
Водонагреватель
Водонагреватель – прибор для бесперебойного нагрева воды. Бойлер Aquaverso предлагается в нескольких вариантах в зависимости от объема (30-300 л). Устройство устанавливают как в жилых домах, так и в бытовках, модульных офисах. С ними монтируются коммуникации, обеспечивающие нормальную эксплуатацию водонагревателя.
Мебель
Стол
Стол для установки в модульном офисе, КПП, столовой, бытовке и т.д. Предлагаются как письменные варианты, так и обеденные. Подходят для организации рабочего пространства, обеденной зоны. Разные размеры, формы, варианты.
Кровать
Кровать – незаменимая мебель для сна и отдыха. Подходит для установки в дачной бытовке, модульном общежитии, отеле, гостинице, пункте охраны. Кровати отличаются формами, дизайном, материалами. В зависимости от поставленных целей вместе с менеджерами можно подобрать подходящую мебель для быстровозводимого здания.
Шкаф
Шкаф – функциональная мебель с дверцами, ящиками, открытые или комбинированные. В зависимости от назначения внутри можно хранить разные вещи. Предлагаются шкафы для одежды, бумаг. Благодаря такой мебели можно обустроить комфортное пространство в бытовке, модульном офисе, штабе, гостинице и т.д.
Стул
Табуретки, офисные варианты, со спинками, кресла. Все представленные модели отлично подходят для обустройства бытовок, модульных офисов, гостиниц, раздевалок, штабов строительства и других быстровозводимых зданий. Можно заказать в любом количестве. Подробности у менеджеров.
Оборудование
Конвектор
Конвектор – отопительное устройство, в котором тепло направляется в помещение при помощи конвекции. Приборы подходят для размещения в бытовках, модульных офисах, штабах строительства, административных зданиях и т.д. Вместе с конвектором устанавливаются коммуникации, которые гарантируют бесперебойную подачу тепла.
Кондиционер
Кондиционер для поддержки комфортной температуры воздуха в жаркое время года. Заданный показатель позволяет создать внутри благоприятную атмосферу. Кондиционеры подходят для жилых помещений, бытовок, модульных зданий. Вместе с ними проводится электричество и прочие коммуникации для бесперебойной работы оборудования.
Тепловая завеса
Тепловая завеса – устройство, поддерживающее постоянную комфортную температуру внутри помещения. Благодаря ему холод не проникает с улицы зимой, а горячий воздух не проходит летом. Этот тепловентилятор устанавливают в жилых помещениях, а также в бытовках, модульных офисах. С ним монтируются все коммуникации, с которыми исключаются сбои в работе оборудования.
Безопасность
Огнетушитель
Огнетушитель – необходимое устройство для обеспечения пожарной безопасности внутри помещения. Требуется для установки в бытовках, модульных зданиях, которые используются для работы, временного проживания или хранения. Приобрести в SHEDLER можно в любых количествах.
Датчик противопожарный
Противопожарный датчик – приспособление, оповещающее о пожаре или задымлении. Устройство выявляет признаки возгорания при его обнаружении. Датчики размещаются в разных помещениях, в том числе в бытовках, модульных зданиях. Их наличие обеспечивает безопасность и контроль внутри быстровозводимой конструкции.
Из чего состоят контейнеры SHEDLER
На макетах представлен стандартный комплект контейнеров, по вашему запросу мы можем укомплектовать контейнер техникой и мебелью.
Доставка по Москве и Московской области

Доставка манипулятором
Доставка по Москве до 30 км за МКАД: 18 500 ₽
Цена за каждый дополнительный километр до 300 км: 100 р/км.

Доставка длинномером
Доставка по Москве до 30 км за МКАД: 31 000 ₽
Цена за каждый дополнительный километр до 300 км: 100 р/км.
Доставка по России
Осуществляем доставку по всей России. Стоимость доставки зависит от региона и объема груза и рассчитывается индивидуально.
Описание
Двухэтажное модульное здание МЗ-19 состоит из 8 блок контейнеров БК-00 каркасной конструкции. Габаритные размеры каждого блока (ДхШхВ): 5,85 х 9,8 х 4,9 м. Подъем на второй этаж осуществляется по наружной металлической лестнице.
На первом и втором этажах большие комнаты без перегородок. Такое модульное здание может быть использовано как двухэтажное общежитие, временное полноценное жилье для строителей, офис, административное здание и т.д. Здание утеплено материалом URSA 50 мм. Здесь есть все для комфортного проживания в любое время года.
Внешняя отделка МЗ-19 из оцинкованного профлиста С8, внутри обшивка из ДВП. 8 окон, межкомнатные двери. Дополнительно внутри можно установить кондиционеры, обогреватели, мебель, столы, стулья и т.д. все это имеется в наличии у SHEDLER.
Также здание можно оборудовать тамбуром, сделать раздельные комнаты, установить санузел, кухню и т.д.
